Planungsstudie Wohnquartier Am Weingarten
Ort
Osnabrück-Pye
Planungsleistung
LPH 1-3
Bearbeitung
2014 - 2018
Planungspartner
Bebauungsplan-Verfahren: ibt Ingenieure + Planer
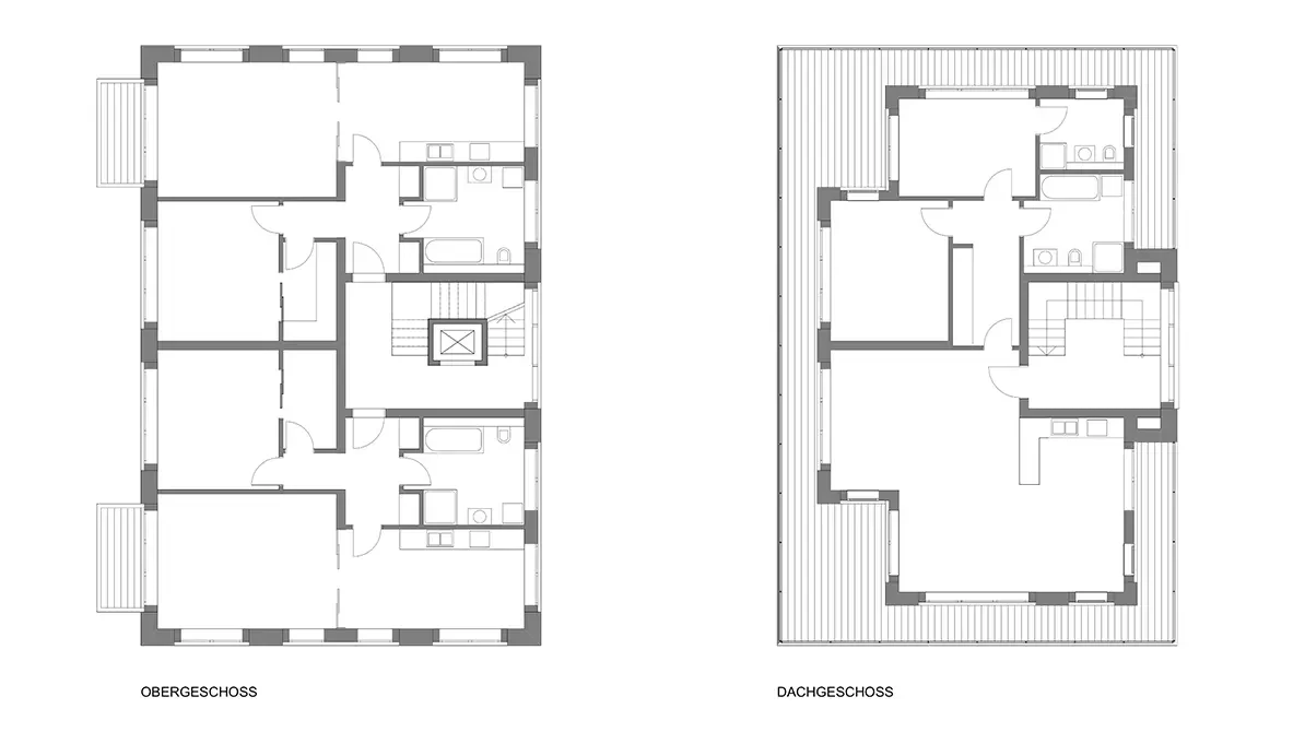
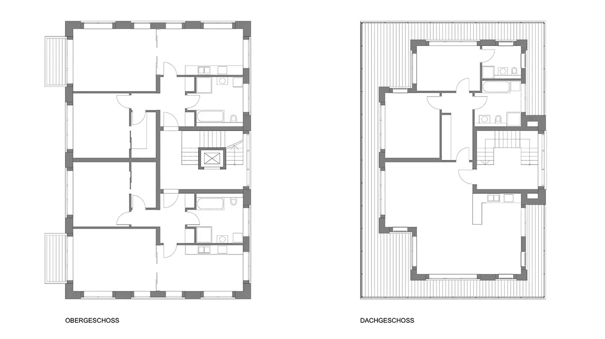
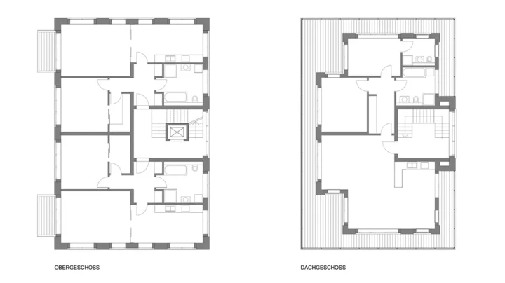
Die Planungsstudie für das Wohnquartier Osnabrück-Pye mit 5 Mehrfamilienwohnhäusern und 6 Kettenhäusern entstand in enger Abstimmung mit der Stadt parallel zur Aufstellung des Bebauungsplans.
Ziel der Planung war neben der Schaffung von Wohnraum die städtebauliche Fassung und Aufwertung des Ortseingangs Pye und die Ausbildung einer Raumkante zum südlich angrenzenden, unbebaubaren Freiraum. Die unterschiedlichen Bauformen fügen sich in Maßstab und Materialität harmonisch in die Struktur des Stadtteils Pye ein.
Auf Grund des Verkaufs des Grundstücks während der Planungsphase wurden die Gebäude in veränderter Form realisiert.






